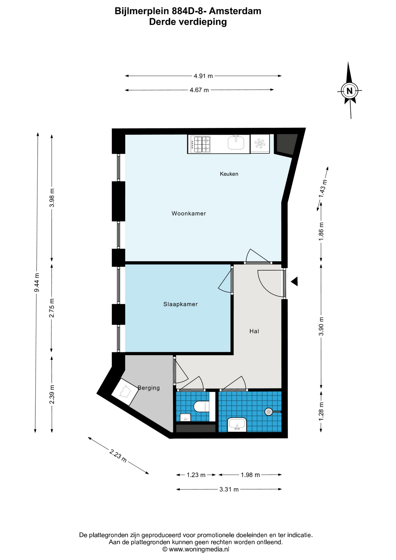
In dit comfortabele tweekamerappartement van circa 45 m2, gelegen op de 3e verdieping, kun je fijn samenwonen en ben je overal dichtbij! Hier kom je écht thuis. Het appartement is voorzien van een hoogwaardige PVC-vloer in lichte houtprint met hoge witte plinten en de muren zijn afgewerkt met wit scanbehang. De rechte keuken van het merk Bribus is volledig uitgerust met alle benodigde keukenapparatuur, waaronder een Quooker. De keukenkasten zijn hoogglans wit en hebben hoekgrepen. Het aanrechtblad is van zwart composiet. Elke keuken beschikt over een koel-vriescombinatie, vaatwasser, afzuigkap, 4-pits inductiekookplaat en een combimagnetron van het merk Pelgrim. De moderne badkamer is afgewerkt met antraciet vloertegels van 30x30, wit glanzende wandtegels van 15x30 en is voorzien van een inloopdouche, enkele wastafel, spiegel en handdoekradiator. Ook is er een separaat betegelde toiletruimte met hangend toilet en fonteintje. Het separate toilet is afgewerkt met antraciet vloertegels van 30x30 en wit glanzende wandtegels van 15x30 tot 1,5 meter hoog. De woning is voorzien van een interne berging, waar bijvoorbeeld de wasmachine geplaatst kan worden. Bovendien beschikt deze woning ook over een externe berging en een gekoppelde parkeerplek. De woning wordt verwarmd door middel van stadsverwarming en bevat minimaal energielabel A. De getoonde afbeeldingen zijn ter illustratie en niet persé de feitelijke weergave in de woning. Aan deze afbeeldingen kunnen geen rechten worden ontleend.
Specificaties
| Servicekosten € 95 p/mnd |
Woonoppervlak 45 |
| Type tweekamerappartement |
Verdieping 3 |
